Eurovillage Miroslava

Case de vanzare zona Miroslava, Iasi

Case de vanzare cu 4 camere 3986 vizualizari
Case tip duplex 110mp Balcon 1
Pret 76.000euro, T.V.A. 5% Inclus
Project Offer Image Living, hol, baie, bucatarie si terasa

Parterul vilei este impartit astfel : Living generos de 25 mp, holul de primire si casa scarii in suprafata de 7 mp, garderoba de 2mp, un grup sanitar de 4 mp, o bucatarie inchisa sau deschisa dupa preferinte in suprafata de 12 mp, camara de 2mp si terasa exterioara acoperita.

 

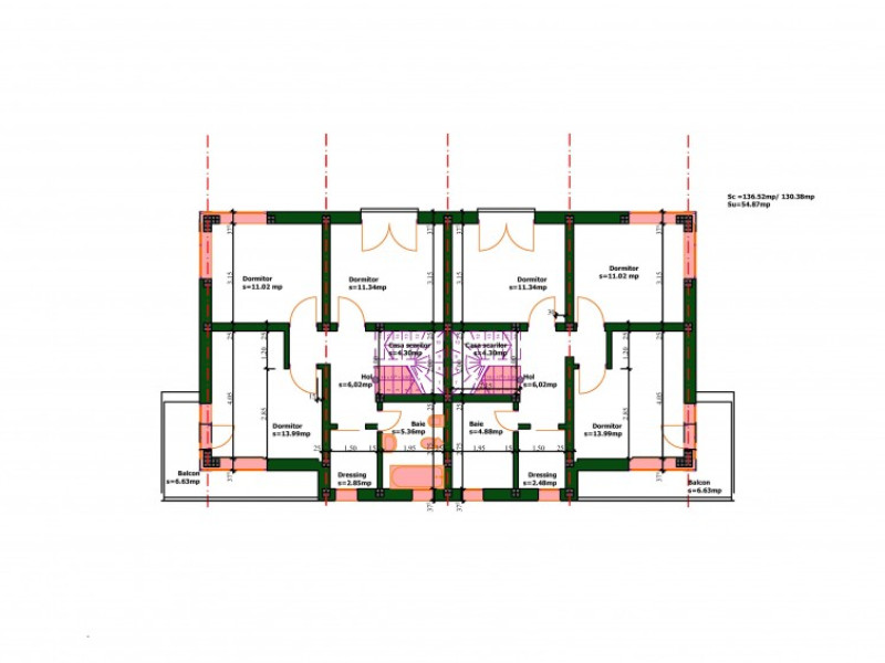
3 dormitoare, 1 baie, hol si 1 balcon
In zona de noapte a vilei, suprafata etajului a fost compartimentata in 3 dormitoare, un grup sanitar, iar doua din dormitoare au acces la balcon.

De asemenea fiecare casa dispune de o curte in suprafata de 250 mp.

Case tip duplex
Case tip duplex
76.000 Euro
Case tip triplex
Case tip triplex
72.500 Euro
Solicita detalii despre acest proiect
Nume*
Telefon*
E-mail*
Oferta imobiliara propusa de Consilier Imobiliar Inter Imobiliare

Compania Inter Imobiliare ®

Iasi, Romania, 2002-2026

Birou de vanzari

Bld. Tudor Vladimirescu, nr. 42-44

Cladirea de birouri Expert Building Center

Contact

Tel/fax: 0232.22.66.66

Mobil: 0729.22.66.66